محصولات
شبکه توزیع شهری RMU
  • شبکه توزیع شهری RMUشبکه توزیع شهری RMU
  • شبکه توزیع شهری RMUشبکه توزیع شهری RMU
  • شبکه توزیع شهری RMUشبکه توزیع شهری RMU
  • شبکه توزیع شهری RMUشبکه توزیع شهری RMU
  • شبکه توزیع شهری RMUشبکه توزیع شهری RMU
  • شبکه توزیع شهری RMUشبکه توزیع شهری RMU

شبکه توزیع شهری RMU

KXRM6-12 شبکه توزیع شهری از نوع RMU تولید شده توسط KEXR ، یک تولید کننده تجهیزات تجهیزات انتقال قدرت و توزیع برق در چین ، یک کابینت شبکه حلقه ای با گاز با فشار 12 کیلو ولت است ، که از گاز عایق بندی سازگار با محیط زیست به عنوان عایق بندی استفاده می کند و برای منبع تغذیه شبکه حلقه ، شاخه کابل و محافظت از ترمینال از شبکه توزیع مناسب است. این محصول دارای ویژگی های کوچک سازی ، هوش و قابلیت اطمینان بالا است که نیازهای توسعه شبکه هوشمند مدرن را برآورده می کند.
مدل: KXRM6-12
برند : kexr

feature ویژگی طراحی شبکه توزیع شهری از نوع KXRM6 RMU

شبکه توزیع شهری KXRM6 RMU طرح طراحی ماژولار را اتخاذ می کند ، و واحدهای اصلی ماژول آن ماژول سوئیچ بار ، ماژول لوازم الکتریکی ترکیبی و سایر ماژول های عملکردی ویژه هستند. هر ترکیبی از این ماژول ها یک ساختار جعبه مشترک را تشکیل می دهد. در ماژول ترکیبی ، هر عملکرد تقریباً مشابه ساختار داخلی ماژول اصلی است.


network شبکه توزیع شهری RMU با استفاده از شرایط

شبکه توزیع شهری KXRM6-12 RMU برای دمای بالا و پایین (+40 ℃ ~ -40 ℃) ، رطوبت ، گرد و غبار ، آلودگی نمک ، معادن ، ارتفاع زیاد (L000) و سایر محیط ها مناسب است. غوطه وری کوتاه مدت در آب در طی 24 ساعت بر استفاده تأثیر نمی گذارد. توجه: اگر ارتفاع بالاتر است ، لطفاً ارتفاع خاص را مشخص کنید.

○ استانداردها

شبکه توزیع شهری RMU مطابق با استانداردهای زیر است

▶ استانداردهای بین المللی

IEC60056 ، IEC60298 ، IEC60129 ، IEC60420 ، IEC60265 ، IEC60694 و غیره.

▶ استاندارد چین

GB3804 ، GB3906 ، GB11022 و غیره

parameters پارامترهای فنی اصلی شبکه توزیع شهری KXRM6-12 RMU

Urban Distribution Network Rmu


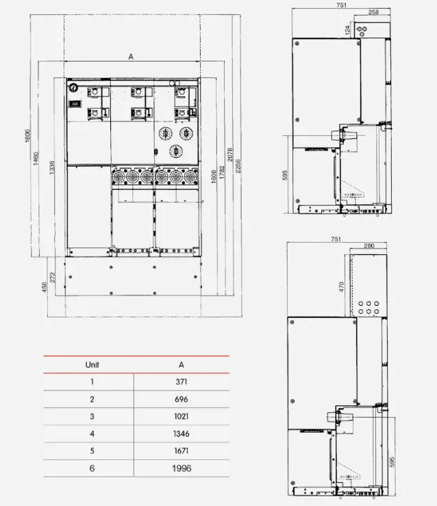
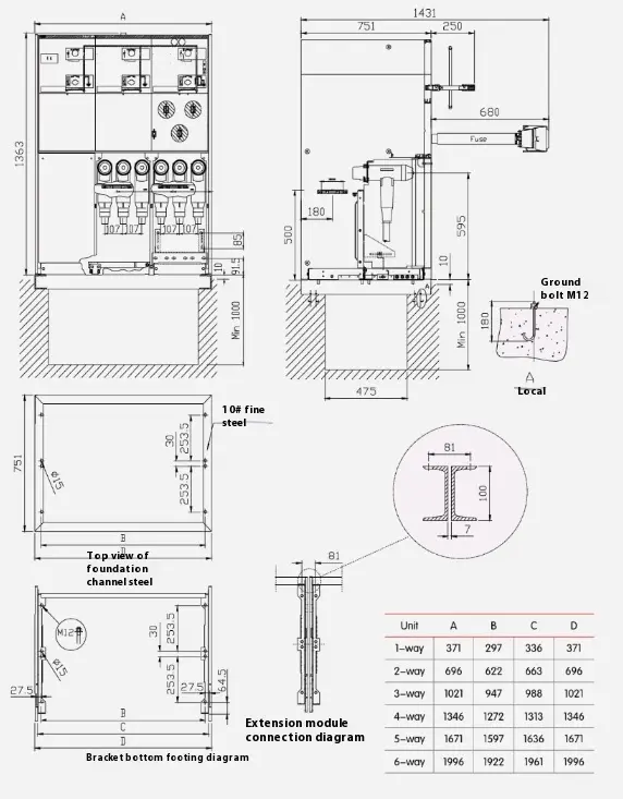
dains نقاشی ساختاری و ابعاد شبکه توزیع شهری RMU

Urban Distribution Network RmuUrban Distribution Network RmuUrban Distribution Network RmuUrban Distribution Network Rmu



تگ های داغ: شبکه توزیع شهری RMU
ارسال استعلام
اطلاعات تماس
  • نشانی

    No.228 Weishiqi Road ، منطقه توسعه اقتصادی یوفینگ ، شهر Wenzhou ، استان ژجیانگ ، چین

  • پست الکترونیک

    sales01@kexunelectric.com

برای پرس و جو در مورد جعبه شعبه کابل ، سوئیچ ولتاژ بالا ، سوئیچ ولتاژ پایین یا لیست قیمت ، لطفاً ایمیل خود را به ما واگذار کنید و ما طی 24 ساعت در تماس خواهیم بود.
X
ما از کوکی ها استفاده می کنیم تا تجربه مرور بهتری به شما ارائه دهیم، ترافیک سایت را تجزیه و تحلیل کنیم و محتوا را شخصی سازی کنیم. با استفاده از این سایت، شما با استفاده ما از کوکی ها موافقت می کنید. سیاست حفظ حریم خصوصی
رد کردن قبول کنید